Klare Bestandspläne – genau dann, wenn Sie sie brauchen
Zusatzleistungen für Eigentümer & Verwalter Präzise Bestandspläne und digitale Modelle
– flexibel, schnell und verständlich aufbereitet
Basis-Paket – Bestandsgrundriss
Digitalisierung vorhandener Pläne in exakter und übersichtlicher Form. Ideal für Ihre Unterlagen, Verkauf oder Verwaltung.
Plus-Paket – Aufmaß + klassische Pläne
Vor-Ort-Aufmaß bei fehlenden oder ungenauen Unterlagen. Erstellung von Grundrissen, Schnitten und Ansichten.
Pro-Paket – Digitales Gebäudemodell (BIM)
Umfassendes Aufmaß und Erstellung eines digitalen 3D-Gebäudemodells mit allen gewünschten Plänen – zukunftssicher und vielseitig nutzbar.
Wir schließen die Lücke zwischen teuren Architektenleistungen und ungenauen Onlinetools. Ob für Notar, Verwaltung oder Verkauf – mit uns erhalten Sie präzise und verständliche Pläne, auf Wunsch auch maßgeschneiderte Lösungen für größere Projekte.
Referenzen:

Digitalisierung alter Grundrisse für Notarielle Abgeschlossenheitsbescheinigung
Für einen privaten Kunden haben wir alte, schwer lesbare Grundrisse digitalisiert und in ein sauberes, professionelles Format übertragen.
Unsere Leistungen:
- Erstellung sämtlicher Grundrisse in moderner Darstellungsweise
- Ergänzende Raumliste für die notarielle Abgeschlossenheitsbescheinigung
- Schnelle und präzise Umsetzung

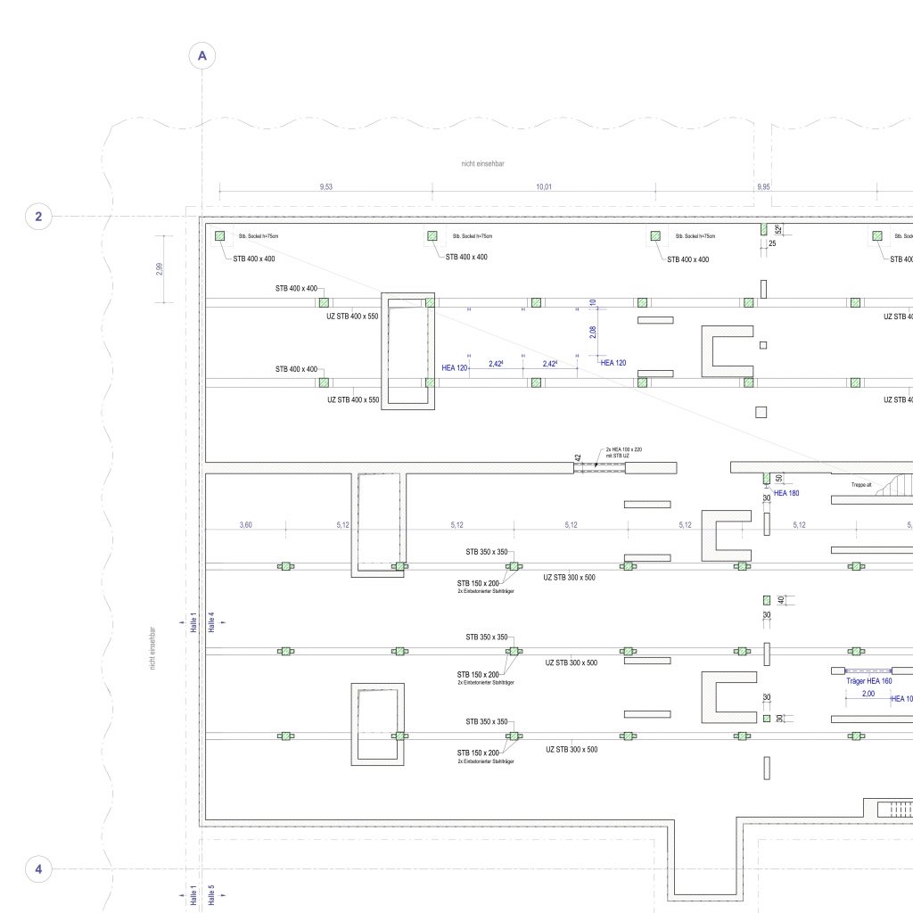
Industriehalle – Digitale Bestandserfassung als BIM-Modell
Für einen Industriekunden wurde eine bestehende Produktionshalle umfassend digital erfasst und als BIM-Modell aufbereitet. Ziel war es, eine präzise Grundlage für Umbau- und Erweiterungsplanungen zu schaffen.
Unsere Leistungen:
- Vor-Ort-Aufmaß und umfassende Bestandsaufnahme
- Erstellung eines vollständigen 3D-BIM-Modells
- Detaillierte Planunterlagen: Grundrisse, Schnitte und Details
- Übergabe eines flexiblen, zukunftssicheren Datenmodells für weitere Planungen

